リフォームドキュメントの2回目は、要望のまとめ方です。
前回>>リフォーム工事の流れ〜12年目のリフォームドキュメント①〜
リフォーム会社に会うまでに必要なのが、リフォームの要望のまとめです。
今回は、具体的なまとめ方を話していきますね。
[ad#ad01]
要望のまとめが必要な理由
新築でもリフォームでもそうですが、業者への要望事項は、口頭だけでなく、
紙にまとめて、渡すようにした方がよいです。
理由は、以下の二つです。
①要望の伝え忘れをなくす
②自分たちの要望を整理出来る。
相見積をする場合は、各業者に同じことを伝えなくてはならないのですが、口頭ですと忘れてしまったり、違うことを言ってしまったりする可能性もあります。後で見積もりを比較する時に困るので、業者に会う前に必ず紙にまとめるようにしましょう。
リフォーム会社に伝えるべき5項目
以下の5項目は必ず書くようにしましょう。
・予算
・希望の工期
・リフォームの目的
・家族構成、どの部屋を誰が使っているか
・部屋ごとの要望事項
書き方は、手書きでもエクセルでもOKですが、各社、同じものを渡すようにしてください。図面が手元にある場合は、そこに書き込んだ方がわかりやすいですね。また、家族構成により、提案内容が変わる場合がありますので、人数や性別、どの部屋に誰が住むか、も伝えておきましょう。
部屋ごとに、要望を書き込む
要望内容は部屋ごとにまとめます。同じ内容なら、共通の仕様に記号をつけると便利です。
例えば、共通する仕様を、A仕様として、以下のように書きます。
A仕様
天井:ビニールクロス貼り替え
壁ビニールクロス貼り替え
床:フローリング張替え
この「A仕様」を、共通する各部屋に書いていけば、間違わずにわかりやすくリフォーム会社に伝えることが出来ます。
図面があれば、図面に書き込むとわかりやすいですね。
この「A仕様」ですが、さりげなく「フローリング貼り替え」と書きましたが、これが意外に大変でコストがかかります。
フローリングを張り替える場合、巾木とか、ドアの敷居とか関係する部分も工事する必要があり、手間がかかることが多いです。
「手間がかかる」=「コストがかかる」ということになります。
そのため、恐らく
「フローリングを張り替える」⇒「フローリングを既存の上に重ね張りする」
とした方が、コストもかからないので、リフォーム会社にもお勧めされるかと思います。
このように、一般では分からないことも多いかと思いますが、とりあえず、要望として書いて、後はプロのアドバイスをもらう、というスタンスで大丈夫です。わかる範囲で、要望を書き込みましょう。
[ad#ad01]
要望が明確な場合は、具体的な仕様を指示
キッチンのリフォームなど、やりたいことが明確な場合は、具体的な仕様を決めて、依頼すると、見積もり比較が楽になります。
出来れば、自らショールームに行って、商品を仮にでも選んで見積もりまでとってしまうのが良いです。
定価の見積もりであれば、通常、ショールームで選んでから、一週間程度で施主の手元に届きます。
それをリフォーム会社に渡せば、同じ仕様で見積もれるので、相見積もりの比較は楽ですね。
住宅設備が中心のリフォームなのであれば、2、3時間程度かけてショールームで選べば、キッチン、浴室、洗面化粧台、トイレの見積もりを得ることを出来ます。是非、足を運んでみてください。
具体的に指示すると、見積もり比較は楽ですが、リフォーム会社からのアドバイスや提案を受けずらくなります。
もしかすると、仕様はほとんど変わらないけれど、安価に仕入れる商品があるかもしれません。
ので、指示以外の代替案も出してもらうと良いですね。
例えば、LIXILのキッチンでいえば、リシェルSI(最上位)というシリーズと、AS(中間)というシリーズでは、定価に対する掛け率(値引き率)が1.5倍も違います。同じ定価だったとしても、ASの方がかなり安くなるのです。そのような情報なしにショールームにいくと、どうしても高い商品を選びがちになり、予算をオーバーしてしがちですので、
リフォーム会社からの提案もしてもらうと選択の幅が広がり良いかと思います。
提案が欲しい場合は、目的を明確に
耐震、断熱リフォームや、間取りも変えるのような大幅なリフォームの場合は、
まずは、叩き台としてリフォーム会社に提案をしてもらう方がよいですね。
その場合に大事なのが、リフォームの目的をしっかり伝えることです。
「冬寒くて仕方がないので、暖かいリビングにしたい。
で、せっかくリフォームするので、キッチンも新しくしたい」
という風に書くと、「LDKを暖かくする」のが目的で、ついでに「キッチンもリフォーム」ということがわかります。
リフォームとなると、色々改善したくなりますが、最も優先順位が高いもの=リフォームする目的
をしっかり伝えるようにしましょう。
[ad#ad01]
アキラが実際に渡した要望書
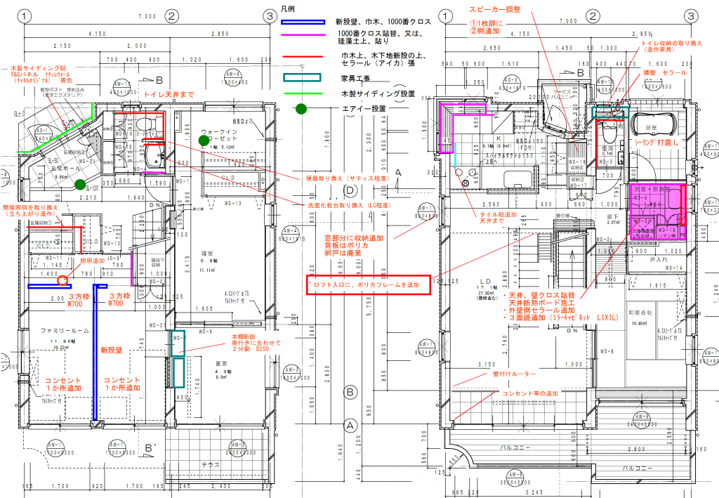
では、実際に私が作成し、リフォーム会社に渡した要望のまとめを紹介します。
こちらは、エクセルに書いたものの一部です。
私の場合は、子供部屋を半分に分けることが目的になりますので、最初にそれを書いています。
その上で、部屋ごとの要望事項を入れています。
主な工事を紹介すると、、、
・子供部屋の間仕切り
・ハンガーを設置
・子供部屋にコンセント追加
・クローゼット前に照明
・階段手摺の補強
・一階トイレの壁にセラール
・二階トイレの壁 塗り替え、又は腰壁
・二階トイレに収納
・二階洗面のクロス貼り替え
・二階洗面の天井をNDパネル、樹脂見切り
・キッチンの壁をタイル貼り追加
・キッチン収納に棚追加
・二階吹き抜けにポリカパネルを設置
・一階トイレをサティスに
・一階洗面所をLCに
・一階玄関にエアイー
・二階スピーカーの調整
などです。
部屋ごとの要望は打ち合わせによって変わる可能性があります。
変更する場合は、全ての会社にその変更内容を伝えるか、1回目の見積もりをもらった後に、まとめて変更してもらうようにしましょう。
まずは同じ条件で見積もりをもらうことが大事になります。
こちらは、図面に書き込んだものです。
ドキュワークスという富士ゼロックスのアプリを使って作りました。
PDFよりも、書類の加工が楽なので、重宝しています。
|
|
もちろん、図面に手書きでもOKです。
私の自宅は、かなり細かく仕様や範囲指定を行っているので、このような図面がないと打ち合わせは長くなるし、うまく伝わりません。
3社に同じことを伝える必要がありますので、事前に用意することで時間短縮ができました。
何もなくても打ち合わせは可能ですが、図面があるなら、用意してあげましょう。
とまあ、こんな感じで要望書を作成してみてください。
次回は、
見積もり依頼するリフォーム会社の選定を行っていきます。
では!








